Das von Lugao hergestellte Transformator-Neutralpunkt-Erdungsschutzgerät der GW13-Serie dient zum Schutz der Isolierung des Transformator-Neutralpunkts vor Blitzüberspannung, Schaltüberspannung und (transienter) Netzfrequenzüberspannung. Lugao verfügt über professionelle Produktionsausrüstung und umfangreiche Exporterfahrung, und der Lagerbestand kann schnell geliefert werden.
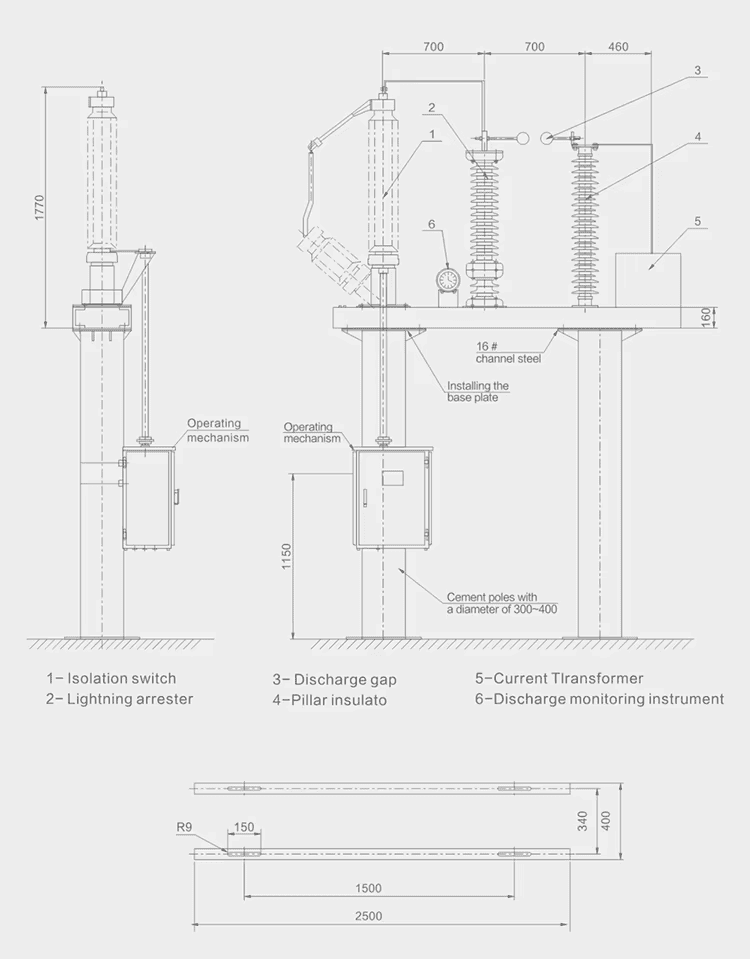
Die Transformator-Neutralpunkt-Überspannungsschutzgeräte der GW13-Serie von Lugao werden hauptsächlich in den Sternpunktstromkreisen von 110-kV- und 220-kV-Leistungstransformatoren eingesetzt. Sie schützen die Sternpunktisolierung des Transformators vor Schäden durch Überspannung und ermöglichen dem Transformator die Umschaltung zwischen geerdetem und ungeerdetem Sternpunktbetriebsmodus. Wenn ein gleichzeitiger Schutz gegen Blitzschlag, Netzfrequenz und Schaltüberspannungen erforderlich ist, können zum Schutz eine Lücke und ein Ableiter parallel geschaltet werden. Der Neutralpunkt-Überspannungsschutz der GW13-Serie ist ein komplettes Set, das einen Trennschalter, einen Zinkoxid-Ableiter, eine Entladungsstrecke und einen Stromwandler umfasst. Es zeichnet sich durch eine hohe Wärmekapazität und hervorragenden Schutz, flexible Konfigurationen und Benutzerfreundlichkeit aus. Je nach Bedarf des Anwenders kann ein reines Spaltdesign oder eine Kombination aus Trennschalter und Entladungsstrecke gewählt werden.
Technische Spezifikationen des GW13-Schutzgeräts
| lt |
Einheit |
Argument |
||
| Produktmodell |
|
Lugao-gw13-110 |
Lugao-gw13-220 |
|
| Nennspannung |
KV |
110 | 220 | |
| Der Neutralleiter des Transformators hält der Spannung stand |
Blitz-Voll- und Schnittspannungsfestigkeit (Spitze) |
KV |
250 | 400 |
| 1min Netzfrequenz (Effektivwert) |
KV |
95 | 200 | |
| Neutraler Trennschalter |
Nennstrom |
A | 630 | 630 |
| Betriebsmechanismus |
|
CS14G (manuell) oder CJ2 (elektrisch) |
||
| Zinkoxid-Ableiter |
Nennspannung (RMS) |
KV |
72 | 144 |
| Dauerbetriebsspannung |
KV |
58 | 116 | |
| DC 1mA Referenzspannung |
KV |
103 | 205 | |
| Restspannung des Blitzstoßstroms |
KV |
186 | 320 | |
| Entladungslücke |
Abstandsbereich der Spaltelektrode |
mm | 90-150 | 220-320 |
| Entladespannungsbereich der Netzfrequenz |
KV |
50-83 | 100-166 | |
| 1,2/50us Impulsentladungsspannung |
KV |
120-190 | 250-320 | |
| Stromwandler |
Typ |
|
Mit Epoxidharz gegossener, vollständig geschlossener Säulentyp 10 kV |
|
| Übersetzungsverhältnis |
|
100/5.200/5.300/5.40015.50015.600/5 |
||

12KV-Trennschalter für den Außenbereich
132KV Hochspannungs-Trennschalter für den Außenbereich
Gw4 Hochspannungs-Trennschalter für den Außenbereich
Gw1-12 Hochspannungs-Trennschalter für den Außenbereich
Gw1-24 Hochspannungs-Trennschalter für den Außenbereich
Gw5 Hochspannungs-Trennschalter für den Außenbereich